Eladó új építésű téglalakás - Siófok

Új építésű!
Új építésű
KAPCSOLAT
Szemerjay Viktória


+36 30 162

szemerjay.viktoria@

Az időpont kérés naptár ikonja
IDŐPONTOT KÉREK
A visszahívás kérés telefon ikonja egy azt körbe ölelő nyíllal
VISSZAHÍVÁST KÉREK
Ajánlom egy ismerősömnek ikon
AJÁNLOM EGY ISMERŐSÖMNEK
Facebook megosztás ikon
MEGOSZTÁS

KAPCSOLATFELVÉTEL

Küldés

Az üzenetet sikeresen elküldtük!
Hiba történt!
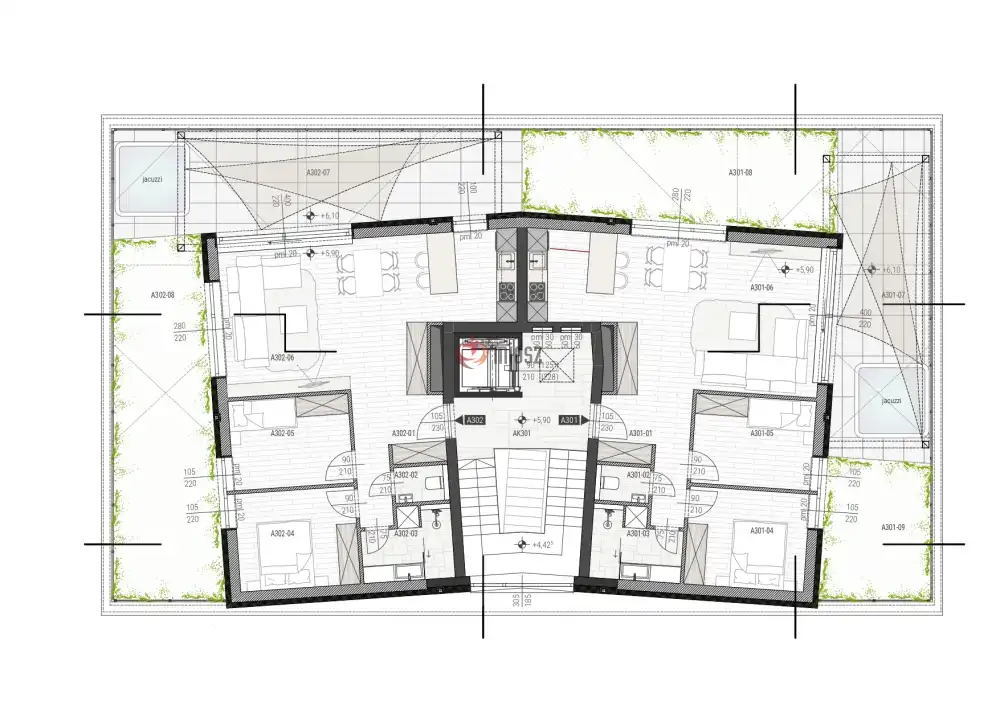
INGATLAN ADATAI

Ingatlan jellege

téglalakás

Belső terület

68 m²

Tájolás

észak

Építési állapot

új

Építési mód

tégla

Szobák száma

3 szoba

Szobák elhelyezkedése

külön nyílik min. 2 szoba

Kert

(közös kerthasználat)

Terasz

67 m²

Emelet

2.

Épület szintje

2.

Épült

2027

Akadálymentes

igen

Lift

van

Ingatlan állapot

kívül: új
belül: új

Klíma

van

Szigetelés

15 cm

Ablak szerkezete

3 rétegű thermoplan

Fűtés

hőszivattyús

Komfort

összkomfort

Parkolás

van fedetlen felszíni beálló

Kilátás

utcára, udvarra, parkra

Energetika

nincs megadva

Az időpont kérés naptár ikonja
HTML
Az időpont kérés naptár ikonja
PDF
Eladó új építésű téglalakás
Ingatlan azonosító:
55_mpi

Somogy megye, Siófok, (Ezüstpart), Csongor utca

Irányár

204 M Ft

Szobák

3 szoba

Emelet

2

Terület

68 m²
INGATLAN LEÍRÁSA
Exkluzív otthon, vagy kiváló ár-érték arányú ingatlanbefektetés Balatonon!

Siófok Ezüstparti városrészében, a szabadstrandtól karnyújtásnyira (50 m) épülő új lakóparkban kínálunk csúcsminőségű kivitelezésű, minden tekintetben modern ingatlanokat megvételre.

A Lakópark egyediségét az egymással harmonikus utcaképet sugárzó épületek, az ápolt, a leendő zöld környezet, és a lakóparkban élők, vagy pihenésre érkezőknek elérhető extra szolgáltatások biztosítják, mint a fűthető, privát medencék, játszóterek, közösségi grillező, gyerekfocipálya, árnyékolt pihenőterek, szaunavilág, stb. A közös használatú terek karbantartásáról külön személyzet gondoskodik majd.

A beruházó 7 db, épületenként 10 db luxus lakást magába foglaló lakópark kivitelezését már megkezdte, az első tömbök már épülnek, és a lakások leköthetők 2027.évi átadással.

Épületenként 8 db egyforma méretű, teraszos, 1 hálószobás 48 m2-es ingatlan, továbbá a 2.emeleten 2 db, szintén egységes méretű, penthouse jellegű, 2 hálószobás, extra nagy teraszos, 68 m2-es lakások érhetők el.

Kiemelt műszaki jellemzők:
• energiahatékony Daikin levegő-víz hőszivattyúk padlófűtéssel
• intelligens, nagy teljesítményű klímarendszer
• elektromos, lamellás Schlotterer zsalúziák
• korszerű otthonautomatikai rendszer (’smart home’ funkciók)
• a társasházban lift, és biztonsági kamerarendszer

Az ingatlanok burkolt területekkel, festett falakkal, felszerelt fürdőszobával, és 1.osztályú Internorm műanyag-alu nyílászárókkal vehetők át, de külön megállapodással kulcsrakészen is megvásárolhatók.

Mindegyik épülethez lakásonként 1 db parkoló, és tároló érhető el. Természetesen elektromos autótöltők is rendelkezésre fognak állni.

Aktuálisan elérhető lakások listájáért keressen bizalommal!
A helyszín és az építkezés megtekinthető előzetes időpont egyeztetéssel, hétköznapokon.

Válassza Siófokon az minden évszakban zavartalan Balaton élményt!


INGATLAN ADATAI

Ingatlan jellege
téglalakás
Belső terület
68 m²
Tájolás
észak
Építési állapot
új
Építési mód
tégla
Szobák száma
3 szoba
Szobák elhelyezkedése
külön nyílik min. 2 szoba
Kert
(közös kerthasználat)
Terasz
67 m²
Emelet
2.
Épület szintje
2.
Épült
2027
Akadálymentes
igen
Lift
van
Ingatlan állapot
kívül: új
belül: új
Klíma
van
Szigetelés
15 cm
Ablak szerkezete
3 rétegű thermoplan
Fűtés
hőszivattyús
Komfort
összkomfort
Parkolás
van fedetlen felszíni beálló
Kilátás
utcára, udvarra, parkra
Energetika
nincs megadva
TÉRKÉP

Somogy megye, Siófok, Csongor utca

KAPCSOLAT
Szemerjay Viktória
Szemerjay Viktória


+36 30 162 7415

szemerjay.viktoria@mecsekplusz.hu

KAPCSOLAT
Szemerjay Viktória

+36 30 162

szemerjay.viktoria@

Az időpont kérés naptár ikonja
IDŐPONTOT KÉREK
A visszahívás kérés telefon ikonja egy azt körbe ölelő nyíllal
VISSZAHÍVÁST KÉREK
Ajánlom egy ismerősömnek ikon
AJÁNLOM EGY ISMERŐSÖMNEK
Facebook megosztás ikon
MEGOSZTÁS

KAPCSOLATFELVÉTEL

Küldés

Az üzenetet sikeresen elküldtük!
Hiba történt!
INGATLAN ADATAI

Ingatlan jellege

téglalakás

Belső terület

68 m²

Tájolás

észak

Építési állapot

új

Építési mód

tégla

Szobák száma

3 szoba

Szobák elhelyezkedése

külön nyílik min. 2 szoba

Kert

(közös kerthasználat)

Terasz

67 m²

Emelet

2.

Épület szintje

2.

Épült

2027

Lift

van

Ingatlan állapot

kívül: új
belül: új

Klíma

van

Szigetelés

15 cm

Ablak szerkezete

3 rétegű thermoplan

Fűtés

hőszivattyús

Komfort

összkomfort

Parkolás

van fedetlen felszíni beálló

Kilátás

utcára, udvarra, parkra

Energetika

nincs megadva

Az időpont kérés naptár ikonja
HTML
Az időpont kérés naptár ikonja
PDF
Somogy megye - Siófok
Somogy megye - Siófok
Somogy megye - Siófok
Somogy megye - Siófok
Somogy megye - Siófok
Somogy megye - Siófok
Somogy megye - Siófok
Somogy megye - Siófok
Somogy megye - Siófok
Somogy megye - Siófok
Somogy megye - Siófok
Somogy megye - Siófok
Somogy megye - Siófok